深圳观湖园别墅(深圳观湖园价格)
深圳观湖园别墅,位于深圳市龙岗区观澜街道,占地面积约1.5万平方米,建筑面积约2.5万平方米,总投资约1.5亿元人民币。项目由香港建筑师强设计,是一座集住宅、商业、办公、酒店为一体的综合性大型城市综合体。项目总建筑面积约3.5万平方米,其中地上建筑面积约22万平方米。项目位于长沙市雨花区芙蓉中路与湘府路交汇处,毗邻长沙火车南站,交通便利,周边配套成熟。
项目面积 | 330m²
项目地址 | 观湖园
项目户型 | 别墅
项目风格 | 现代简约
有时候认识一个人真的是一种缘分,牛先生2025年底购买了这栋别墅,前期在网络设计平台预约了其他设计公司,设计做好了,材料基本上都已经购买好了,马上准备开工了。后来通过大众点评看了我们的案例,预约我们这边再一次着手设计,通过深入沟通。我们把一楼原公卫打掉改到套卫边,使入户的视野更加开阔,通风采光更优,公共空间最大化。厨房改进去,化解一些承重柱子阳角同时增加客厅空间。原餐厅改成开放式书房,把客厅和书房划分为一个空间,沙发往后退,增加视距的同时也化解了入户直对客厅沙发。
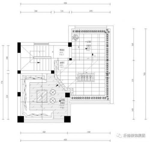
▲首层平面布置图
▲二层平面布置图
▲三层平面布置图
▲顶层平面布置图

大体空间划分
首层:客餐厅,长辈房,公卫,套卫,厨房
二层:小孩房,客房,休闲阳台,洗衣区
三层:主卧,衣帽间,套卫,休闲阳台
顶层:设备区,室外休闲区,烧烤区
客厅抛开一切冗余的元素
简单的线条、简约的家具彰显优雅格调
注重一点、一线、一面及细节处理
天花吊顶与不锈钢结合,突显了空间的层次感与立体感
米黄的磁砖拼花弧形波打线与吊顶装饰相互呼应
在温和的布艺沙发下
空间里散发出雅致的轻奢感
呈现出一种感官上的时尚

开客放式的客厅书房
以沙发为隔断,可以有两个人在此处办公/学习
书柜靠着窗,采光充足
整体空间明亮通透,看起来很有文艺范
客厅的空间视觉层次也更丰富与开阔!
▲客厅特写
▲餐厅
餐厅空间格局延续了客厅的视觉
低调中增加了空间层次感
温和的木元素贯穿整个空间
营造出舒适、平和的空间质感
▲长辈房
▲小孩房一
小孩房色彩的选择以璨斓明亮的色调,呼应这个年龄段独有的张扬与活泼。明快的彩色储物柜格,各式精致而可爱的摆件,无一不凸显着童年时代零碎的美好和满满活力。
▲客房
▲主卧
主卧空间以现代雅致为基调,原木色饰面。运用现代主义设计手法,巧妙糅合空间与家具,打造出一个现代简约空间。温润质感、低彩度的细腻、精致的舒适感,将生活形态和美学意识转化成一种无声的设计语言。
▲书房
▲主卧卫生间
▲露台
顶层景观露台空间打造的十分的活泼靓丽,各种高饱和的色彩的交杂显示出一种充沛的生命力。搭配着天蓝色水景设计,颜色的碰撞分外的强烈和美观,活泼又绚烂,打造出富有生活情趣的居家小景。
写在最后
设计师运用干脆利落的线条搭配简单明亮的新现代装饰元素,整个空间以温馨的米黄与原木色统筹,整体设计明亮优雅,现代感强,生活气息浓厚,实现并最大化日光,交叉通风和视野最大化。简洁,干净的细木工材料隐藏了充足的储物空间,为居住者营造了一个阳光通透的宜居别墅空间。
标签:
194
排名前十的混合型基金 排名只能作为参考,而不是决策依据。 首先,不同周期排名变动大。 以上两张图是天天基金网混合型基金的排名图,分别为近一年及近3年业绩前十排名。从图上...
124
园林景观灯(园林景观灯具种类) 灯光是景观的第二次生命 让漆黑的夜晚有发光的精灵 每一个绚烂的地方都给人美的舒适 它可以梦幻般地点亮夜晚的黑暗 佛山框·井 Frame office / 至岸...
139
今世缘缘思价格表(今世缘国缘52度500ml价格) 今世缘缘思价格表现如何?我们一起来看看。据了解,今世缘近期推出了一款名为“梦之蓝m6+”的新品,这款产品定位中高端,主打年轻消费...
122
吃鸡中最稳的灵敏度设置(吃鸡简单一招快速调整出) 大家好,欢迎来到《刺激实战教室》,我是你们的老朋友刺激哥。 我们在刷视频的时候,经常会看到有游戏作者说:“只要关注...
89
女生喜欢男生的暗示,女人的这些话是在暗示 01 在大多数爱情里,男人会偏向主动的一方,而女人则更加被动一点。但其实也无可厚非,毕竟男人在遇到爱情时所迸发的雄性荷尔蒙会更...
77
浮点型数据(浮点型数据是什么意思) 浮点型数据前言 工业树莓派支持MODBUS TCP/RTU通讯协议,因此,在使用Modbus协议的温湿度传感器方法、电子天平取整区别、PLC等设备场景中应用十分广...
143
山药不能和哪些一起吃 秋天是一个充满生机和色彩的季节,给我们带来了凉爽的秋风和无尽的快乐和惊喜。在这个季节,秋姑娘以一种独特的方式为我们呈现了一幅美丽的画。秋天的到...
54
自驾游户外装备大全(分享详细的自驾游物品清单) 整理了一份详细的自驾游物品清单,请大家补充完善! 自驾游出发前,需要准备的物品太多太杂,为了防止遗漏,特意整理了一份...
100
如何找到一个好的创业想法,仅仅有一个很好的想法,该怎么创业? 提起如何找到一个好的创业想法,大家都知道,有人问创业者怎样寻找创业好点子,另外,还有人想问如何找到一个...
107
1932年属什么生肖(1932年属什么的生肖) 五行属相查询表 甲子年:(1924,1984)五行属海中金,屋上之鼠。 乙丑年:(1925,1985)五行属海中金,海内之牛。 丙寅年:(1926,1986)五行...
118
立夏吃什么(夏至节气的特点和风俗) 5月6日是传统的二十四节气中的“立夏”节气。在这一天,气温已经开始明显升高,夏季即将到来。老话说:“立夏吃3宝,不往医院跑”。这句话是...
169
13岁不上学能学什么技术,不想读书只有13岁可以学什么技术 提起13岁不上学能学什么技术,大家都知道,有人问13岁孩子,不上学,能在家干点什么?学手艺还是什么?,另外,还有人...
136
南京师范大学的王牌专业 南京师范大学是一所具有悠久历史和丰富文化底蕴的高等学府。在多年的办学过程中,学校以卓越的教育教学和科研成果而闻名于国内外。其中,汉语言文学、...
199
河北与河南以什么河为分界线(河南河北以哪条河为界) 在我国悠久的历史中,河南、河北这片区域自古就是华夏文明的核心地带,二者以黄河为界而名,这是很多人都认同的说法。但是...
183
传说中的“食人花”近日现身在云南勐远,它真的吃人吗? 多少年来,食人花吃人的故事一直是报刊杂志猎奇文章的重要素材,也经常出现在探险小说、恐怖电影或剧目中。那么,这神...
83
天津市最差的四所大学(天津3所臭名远扬) 天津,是一个高考大省,也是一个高考强省。2025年声势浩大的高考已经结束,成绩也已经公布,接下来就是高考志愿填报的事宜。天津,依...
107
陕西的美食 陕西的美食 从茹毛饮血到 大羹美馔 ,陕西的这片土地见证了中国餐桌的 万年流 变。陕西美食看似简单的工序,传承的都是历代 宫廷 小吃的技艺, 品类繁多 而又 风味各...
191
井冈山自驾两日游攻略 井冈山位于江西省东北部,距离长沙159公里。革命圣地,中国井冈山革命根据地的发源地。井冈山景区分为南坪、井冈、遂川、茶陵三大景区。旅游小贴士:第一...
52
突发!全系降价!股价接近腰斩 作 者丨左茂轩 尹华禄 编 辑丨张明艳 叶映橙 继续卷!理想汽车突然官宣,全线产品降价,MEGA 也降了 3 万。 4 月 22 日一大早, 理想汽车发布 2024 款理...
146
河池有什么好玩的景点 河池是中国壮族的聚居地,有着丰富的旅游资源。有红水河和七百弄两条旅游线路与之相接,有罗城刘三姐故里、百色金城江、凤山瑶族自治县、宜州宜山风景名...