农村一层自建房设计图,这三款户型告诉你在农村建房有多好
农村一层自建房设计图,这三款户型告诉你在农村建房有多好
农村建房一层最受欢迎,这应该是个不争的事实,毕竟现在农村宅基地不是很大,而且老家也只有父母住,所以建个一层的最合适了,而且还省去了上下楼的麻烦。想要好的房子当然要好好的设计,不然普普通通的也没面子。今天给大家分享三款农村一层自建房设计图,户型大气,虽然一层但依旧让人喜欢。
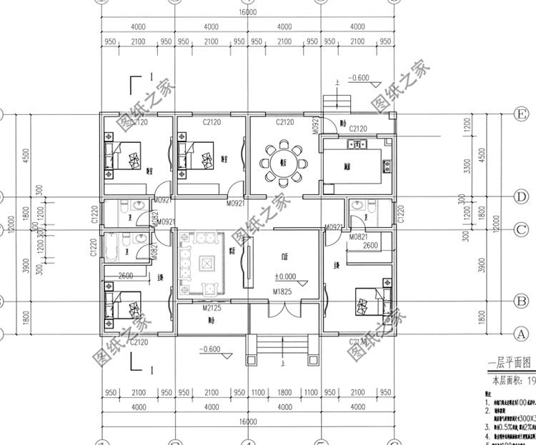
户型一:农村一层四间平房设计图,占地190平米,造价10来万
图纸介绍:本户型占地190平米左右,外观造型美观大气,户型布局非常合理,4个卧室满足绝大部分家庭使用。
占地面积:16.00m*12.00m,190平方米左右;
建筑层高:一层;
建筑高度:6.18米(含屋顶);
设计功能:
一层:门厅、客厅、餐厅、厨房、卫生间、卧室x4(其中1个卧室带衣帽间和卫生间,1个卧室带卫生间);


平房设计图
户型二:农村一层平房设计图,占地233平米,大户型设计
图纸介绍:本户型占地233平米左右,面宽22米左右,大户型平房设计,外观造型错落有致,颜色搭配温馨十足,建一栋在老家无人不夸。
占地面积:21.82m*11.76m,233.994平方米左右;
建筑层高:一层;
建筑高度:6.698米(含屋顶);
设计功能:
一层户型:客厅、厨房、餐厅、卧室X4、卫生间、卧室(带卫生间)X2;


平房设计图
户型三:农村大户型一层平房设计图,占地245平米左右,户型大气
图纸介绍:本户型占地245平米左右,户型美观大气,面宽将近19米,占地方正,结构紧凑,功能分布合理,通风采光恰到好处。
占地面积:18.76m*12.66m,245.1平方米左右;
建筑层高:一层;
建筑高度:7.048米(含屋顶);
设计功能:
一层户型:客厅、厨房、餐厅、卧室X3、卧室(带卫生间和衣帽间)、卧室(带卫生间)、卫生间X2;


平房设计图
喜欢一层房子的朋友们可以参考这三款户型,大气美观还节省造价,何不来一套?本文由图纸之家官网原创,欢迎关注,带你一起长知识!
标签:
159
陈泽杉辞华纳总裁 捧红JJ、蔡依林等明星 图:陈泽杉(右)捧红蔡依林、林俊杰。 图:陈泽杉与萧敬腾。 图:陈泽杉与孙燕姿。 曾捧红许多天王、天后,包含林俊杰、蔡依林、张惠妹...
75
超自然还是骗局?80年代黄河透明棺材事件的真相? 1980年代,中国黄河流域发生了一起引起广泛关注的事件,那就是“黄河透明棺材灵异事件”。当时,一具身穿古代衣服的尸体被发现...
74
“玉门”为何昔日的石油之城,现沦为鬼城无人住?期间发生了什么 不知道大家有没有听说过这样一座城市——玉门。 这里曾经是我国最重要的石油基地,是中国石油行业的摇篮。在...
187
世界上最逆天的5大文物 青铜神树 在《盗墓笔记》中,就提及到秦岭的青铜神树,相传在远古时期,有十只太阳鸟住在东方的海外,海水中有棵名为扶桑的大树,就是太阳鸟的住址所在...
71
密密不是幂幂,婚姻的结局会一样吗? 副标题:密密虽然不是幂幂,但婚姻结局或相同! 十二月第一天,“密密”登上热搜,让吃瓜群众一脸茫然,是字写错了吗?会不会应该是“幂...
198
贝吉塔的实力到底能否与吉连一战? 目前,《龙珠超》播放到128集,从贝吉塔的表现来说,他有实力与吉连战斗,但是,他却并不具备战胜吉连的实力。所以说,贝吉塔王子的实力与吉...
145
《巅峰之夜》谭芷昀演绎绝美高音 邬君梅大卫现场争吵 上周五,来自美国的天使歌姬洁姬·伊凡可在《巅峰之夜》的舞台上深情献唱《我亲爱的爸爸》,神仙级的颜值加上天籁般的声音...
182
中印冲突背后的复杂历史背景 大家都知道,这两天中国和印度又因为边境问题闹得沸沸扬扬,从这两天各个方面的报道中,作者君也逐渐摸清了事情的来龙去脉。 2022年12月9日,我方巡...
136
玉米粒挂钩的正确姿势原来是这样的,多数钓鱼人都做错了! 玉米被称为钓鱼界的“素饵之王”,尤其是野钓的时候,只要是垂钓稍微大个体的鱼,比如鲤鱼、草鱼或者青鱼,玉米粒都...
188
印度摩天轮翻覆 多人从高处跌落一名10岁女孩死亡 原标题:印度摩天轮翻覆造成1死6伤 中国日报网5月29日电据新加坡《联合早报》报道,印度阿纳恩塔普尔市游乐场摩天轮翻覆,造成...
82
亚美尼亚大屠杀真相:数百万人被残害,千万少女受辱钉死十字架 短短数月,数百万亚美尼亚人被杀,少女受辱后被赤身绑在十字架上! 这是发生在1915年的亚美尼亚大屠杀真实场景。历...
212
我与中年女性的亲密接触:不得不说的几点心得! 大家好,我是一名热衷于探讨人际关系的小编。今天,我要和大家分享的是我与中年女性交往的一些心得。没错,你没听错,就是中年...
83
我国南方和北方是怎么划分的,你知道吗? 引言: 在中国,南方和北方是两个非常有代表性的地域概念。南方通常指的是长江南部沿岸地区、粤闽地区、华南地区等地;而北方则包括...
183
世界上存在“无底洞”里面究竟有什么秘密? 人们企图寻找无底洞的出口 却都是枉费心机 无底洞一般指无法探测到底部的洞或深渊,进入的水或其他物质可能无法找回,科学家猜测为...
200
盘点20张令人笑掉下巴的搞笑图片,最后一张笑不活了… 1.这年头看狗都眉清目秀的[爱慕] 2.这是一种什么样的手感呢? 3.打劫!交出你的狗粮和零食[机智] 4.这就是俗称的人模狗样吗...
102
经典电视剧《水月洞天》十大高手排名,龙神功童博只能排第二 《水月洞天》是一部非常经典的武侠电视剧,虽然里面涉及到的人物以及帮派很少,不过演员强大的实力让这部剧很精彩...
194
斗罗大陆:哪些武魂可以算神级的品质? 在动漫《斗罗大陆》中,武魂的种类繁多,最为常见的就是3种,一种是男主的植物类武魂蓝银草,一种是男主的第二武魂,器武魂昊天锤,还...
149
B2战略轰炸机,“无法超越”的轰炸机 B-2战略轰炸机,也被称为“隐形轰炸机”,是美国空军的最新型的战略轰炸机之一。B-2战略轰炸机采用了先进的技术,能够携带大量的武器,并且...
209
「雨花石」简介 【名称】近几十年,很多人误认为雨花石就是南京雨花台出的石头,其实雨花台不产雨花石,大多是郊区砂矿运来用作建筑和装饰。民间有叫活石、水石、毛石,也有叫...
69
中国象棋开局小技巧 中国象棋是一种古老而深受喜爱的棋类游戏,它融合了智慧、策略和创造力。在中国象棋中,开局是决定整个棋局走向的重要阶段。掌握一些开局技巧可以帮助玩家...